VIRTUEEL BEZOEK

Foto's & plannen

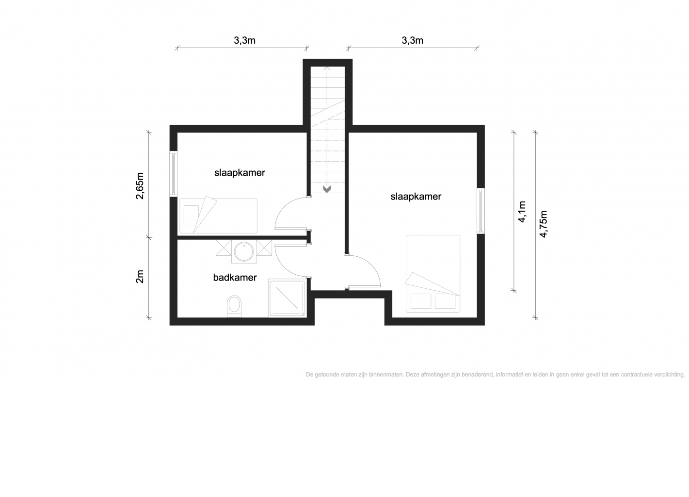
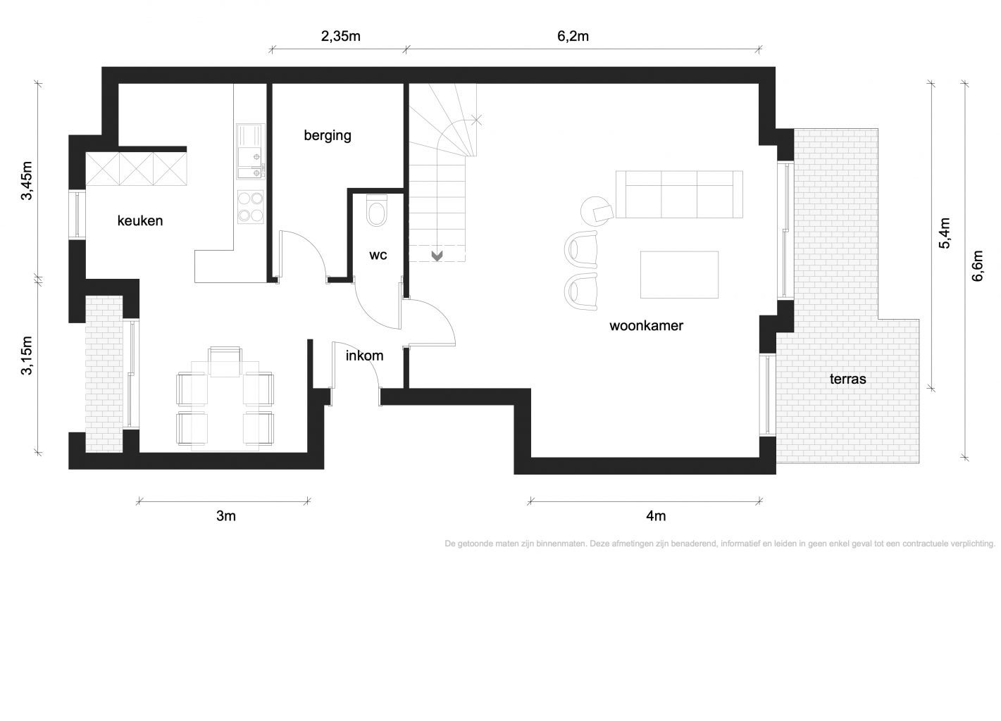
Verdieping 2
vastgoedservice
vastgoedservice

vastgoedservicehuidige toestand

vastgoedservicedrone

vastgoedservice3D: zoals mogelijk na afwerking/renovatie (niet bindend)

print plannen